收藏本站
PS素材
规范
注规
一注
咨询
积分充值
首页
Index
Ai 智能作图
素材
文库
课程
论坛
登录
立即注册
我的课程
学习记录
我的积分
设计e周
»
›
常用素材
›
CAD图纸库
›
日本仙台媒体中心/伊东丰雄设计 CAD图纸 ...
返回列表
发布新帖
[建筑图纸]
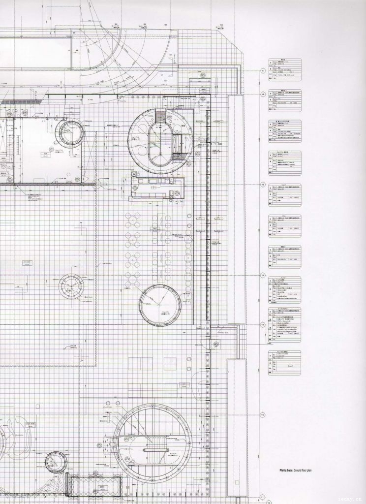
日本仙台媒体中心/伊东丰雄设计 CAD图纸
15401
8
0eat0
Lv.9
发表于 2013-11-6 08:56:11
|
查看全部
阅读模式
马上注册,结交更多好友,享用更多功能,让你轻松玩转社区。
您需要
登录
才可以下载或查看,没有账号?
立即注册
×
e周网-日本仙台媒体中心 cad.zip
(121.43 KB, 下载次数: 539)
2013-11-6 08:55 上传
点击文件名下载附件
查看详细介绍:
http://ieday.cn/thread-7084-1-1.html
日本
,
东丰
,
中心
回复
举报
相关帖子
著名的TOPO天津嘉里中心Kerry Center,值得借鉴
公共建筑_办公中心,现代主义风格,5层
_酒店+办公楼+会议中心综合体,现代主义风格,30层
日本古建Aduchi Castle
日本古建Bichu Matsuyama Castle
日本古建Hamamatsu Castle
日本古建Hiroshima Castle
日本古建Inuyama Castle
日本古建Toyama Castle
迈耶巴塞罗那艺术中心SU
博物馆 展览中心 su模型
这样的设计表达,赶脚超棒!
【大师案例分析】安藤忠雄大阪府立飞鸟博物馆
电梯直达
评论
8
姚大侠的图图
Lv.1
发表于 2014-3-12 22:18:28
|
查看全部
因为我们要做这个建筑的结构模型,所以找到了一些相对较全的资料PS要是谁有这个建筑楼板部分井字梁的具体数据的话跪求数据
(38.75M)
更多图片
小图
大图
组图打开中,请稍候......
回复
支持
3
反对
0
举报
blue168
Lv.1
发表于 2014-2-15 18:46:00
|
查看全部
在学校的时候就非常喜欢这个建筑。。。。
回复
支持
反对
举报
zb125187068
Lv.4
发表于 2014-4-1 02:11:11
|
查看全部
这个收下了
回复
支持
反对
举报
549735480
Lv.2
发表于 2014-7-21 20:54:51
|
查看全部
谢谢分享
回复
举报
549735480
Lv.2
发表于 2014-7-26 10:27:01
|
查看全部
谢谢分享
回复
举报
549735480
Lv.2
发表于 2015-1-12 20:46:39
|
查看全部
谢谢分享
回复
举报
549735480
Lv.2
发表于 2015-1-20 21:03:24
|
查看全部
谢谢分享
回复
举报
arrhou
Lv.1
发表于 2020-11-13 23:05:25
|
查看全部
感谢分享
回复
举报
返回列表
发布新帖
1框架
回复
高级模式
B
Color
Image
Link
Quote
Code
Smilies
您需要登录后才可以回帖
登录
|
立即注册
本版积分规则
发表回复
回帖后跳转到最后一页
0eat0
Lv.9 管理员
主题
好友
37496
积分
Ta的主页
发消息
《深圳市低空航空器起降设施布局规划 (2026—2035年)》.pdf
2026-03-10
自然资源部 国家林业和草原局关于进一步做好自然资源要素保障的通知
2026-03-12
李兴钢:推行建筑设计人工时计价,设立工程建筑学二级学科
2026-03-08
建筑规划设计收费标准能否提高?人大代表连续6年提议
2026-03-08
中华人民共和国国家发展规划法
2026-03-04
查看更多
图文热点
《深圳市低空航空器起降设施布局规划 (202
183 人气
#设计项目
李兴钢:推行建筑设计人工时计价,设立工程
241 人气
#行业资讯
2026年普利兹克建筑奖获得者斯米尔扬·拉迪
553 人气
#设计项目
2026年度普利兹克建筑奖评审辞
208 人气
#设计项目
上一主题
下一主题
关灯
在本版发帖
扫一扫添加微信客服
QQ客服
返回顶部
快速回复
返回顶部
返回列表